Heron House
Location:Bunurong (Rye)
Category:Residential
Year:2021
Team:Camilla McBeath, Will Smart
Photography:Timothy Kaye
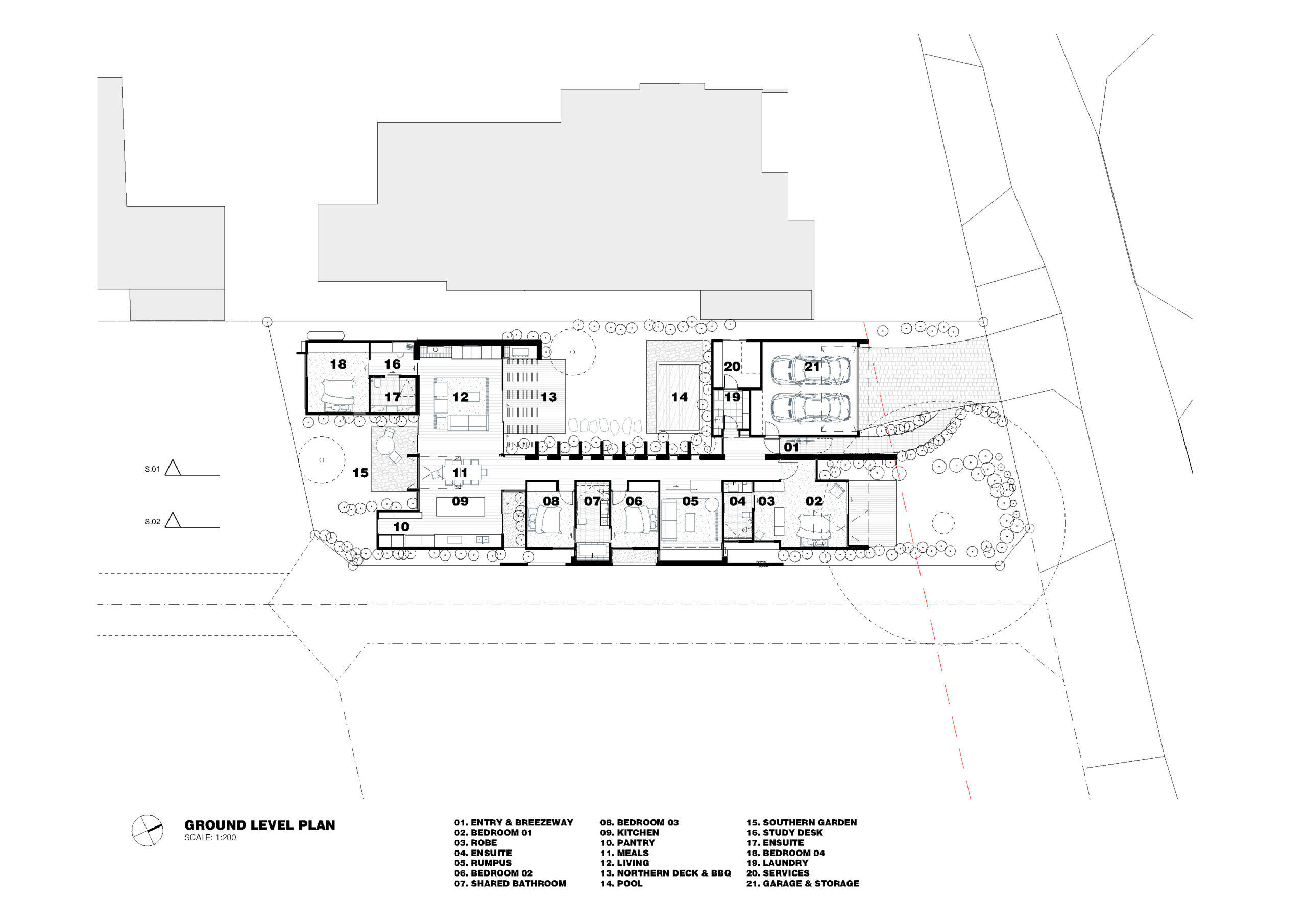
Designing a speculative home is a bit like writing a screenplay. In a typical residential project the end-user is the client. Here, the people who will live in this home are developed as characters, and the home plays the role of the film set. Heron House was conceived as part of a larger landscaped masterplan precinct a few minutes’ walk to Mt. Martha beach - a quaint coastal village 80km south of Melbourne, Australia. With seasonal living in mind, the garden courtyard layout is driven by the desire for a light filled interior and a dual aspect main living area.










